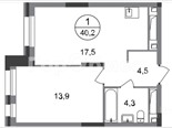
Однокомнатная квартира 40,20 м2 по ул. за 10600000 руб.

Однокомнатная квартира по ул. , в Москве
Цена 10 600 000 р. (263 682 р./м2)
Подать заявку на ипотеку
Этаж 3/20
Площадь общая 40,2 м2, жилая 13,9 м2, кухни 17,5 м2
Кол-во комнат Однокомнатная
Переуступка от физ. лица. ЖК Город-парк Первый Московский. Продается Евродвушка (кухня-гостиная, отдельная спальня, холл и совмещенный с/у). Без отделки. 7 фаза, корпус 3, секция 3. Срок сдачи - 1 квартал 2027 года. На данный момент завершены кровельные работы, ведутся работы по устройству фасада, установке оконных конструкций и монтажу сетей инженерно-технического обеспечения. Приступили к благоустройству территории. Город-парк Первый Московский, расположен всего в 7 км по Киевскому шоссе (Новая Москва). Из города-парка прямой выезд на Киевское шоссе и трассу Солнцево-Бутово-Варшавское шоссе. ТРАНСПОРТНАЯ ДОСТУПНОСТЬ: - 5 мин. на личном автомобиле или 10 мин. на автобусе 189 и 147 до станции метро "Филатов Луг" - 25 мин. пешком до станции метро "Филатов Луг" ИНФРАСТРУКТУРА: Около 7 фазы запланировано строительство детского сада, школы, 2 многоуровневых паркингов. Также на территории проекта есть все необходимые объекты действующей социальной и бытовой инфраструктуры: 8 детских садов, 5 школ, ТЦ, магазины, паркинги, аптеки и др. БЛАГОУСТРОЙСТВО: - Дворы без машин - Игровые зоны для детей, зоны для занятия спортом, зоны для отдыха с навесами/качелями - Детские площадки разделены по возрастным группам - Пешеходный и веломаршрут с двухполосной велодорожкой 2,5 м в ширину - Озеленение с растениями всесезонного цветения ОСОБЕННОСТИ АРХИТЕКТУРЫ: В каждой секции 3 корпуса предусмотрены: - колясочные во входных группах - кладовые помещения с -1 по 20 этажи - коммерческие помещения на 1 этажах - по 4 лифта: 2 пассажирских, 2 грузовых - видеонаблюдение, установленное в холлах первых этажей, у подъездов и на прилегающей территории АВТОРСКИЙ ДИЗАЙН: Входные группы выполнены по авторскому дизайну, оснащены системой "тёплый пол". В каждой входной группе будет располагаться комфортабельная зона ожидания с мягким диваном, акцентными пуфами и столиком. 1 соб-к, без обременений и без мат. капитала.
Описание дома
Этажность дома 20
Объявление № 23887331
Дата подачи:
31 января 2026 г. 4:02
Дата обновления:
31 января 2026 г. 4:02
Просмотров 4 Хотите продать быстрее?

Продавец
Агентство недвижимости:
ДОРОШЕНКО АНЖЕЛА ИГОРЕВНА
Показать номер телефона
Пожаловаться
Комментарии:
Добавить